Kulturværftet Tag Restaurant

Renovering og Restaurering

Genoprettelse af gamle bygninger, nyindretning og transformering

Krarup Hansen & Co. yder rådgivning i alle byggeriets faser med ombygninger af gamle bygninger, herunder også med fredede bygninger hvor kulturarven skal respekteres og behandles på en bæredygtig måde, der tilgodeser myndigheder og bygherrens ønsker og krav.

Vi restaurer, ombygger, tilbygger og transformere bygninger med udgangspunkt i gode bæredygtige løsninger der respekterer det gamle håndværk og materialer. Vi implementerer nænsomt nye moderne løsninger til brandsikring, isolering og energioptimering mv. i respekt for de autentiske bygninger og bebyggelser.

Arkitektur i forbindelse gamle og fredede bygninger og bygningsmiljøer

Ved at genskabe arkitektonisk værdi - Ved en bæredygtig transformering af gamle bygninger der underbygge nye funktioner – Restaurering der kan fastholde og tiltrækker mennesker og bidrager til fællesskab – Ved en bæredygtig restaurering med udsøgte naturlige materialer – Så bygninger kan patinere smukt i harmoni med den gamle bygning.

Renovering af gamle bygninger

Tegnestuen har gennem årene opbygget en viden og erfaring med ombygninger og renovering af gamle bygninger. Vores erfaringer og historisk viden er opbygget i forbindelse med en lang række projekter, hvor funktion, konstruktioner er blevet ændres til nye formål i respekt for de gamle bygningers arkitektur og historier.

Særligt gamle historiske / frede bygninger, som for eksempel i den gamle Bykerne i Helsingør, hvor der er bevaringsværdige Bygninger, som tillige er underlagte lokalplaner, har vi referencer hvor vi har anvendt vores viden om historiske bygnings- konstruktioner materialer og viden om hvordan gammelt håndværk udføres.

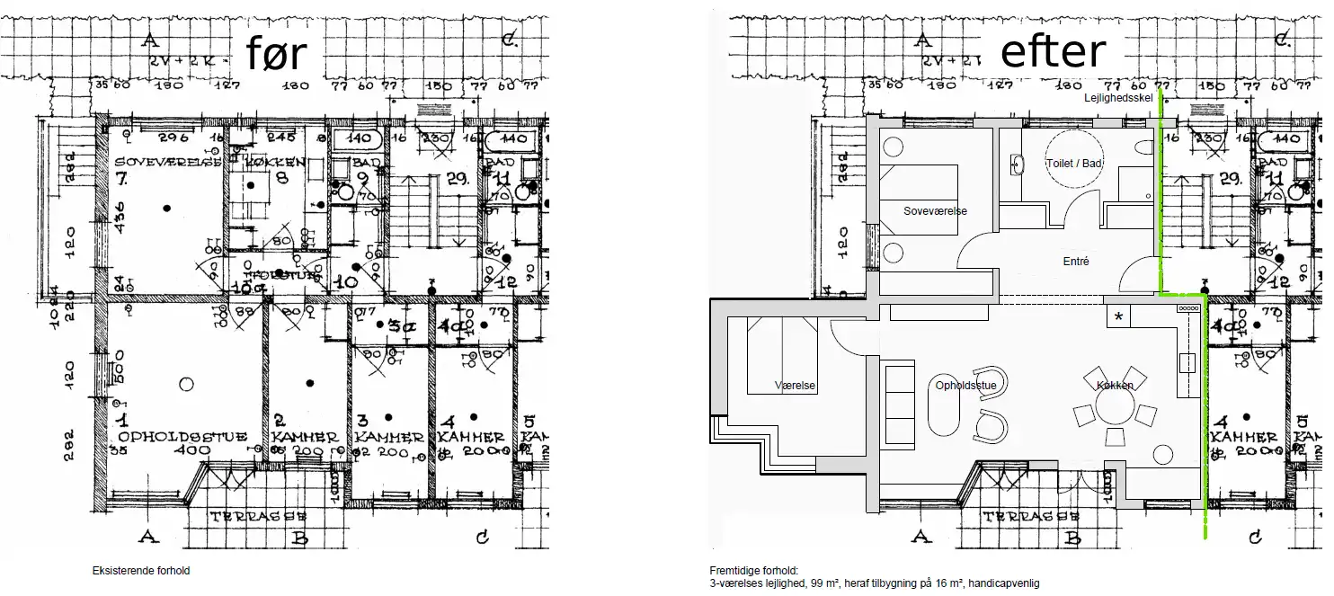
Renovering af lejlighed
Renovering af lejlighed
Arkitektur og design
Arkitektur og design

Tegnestuen har ligeledes referencer fra sager som er renoveret og restaureret med bæredygtige principper med genbrug af Materialer mv.

I øvrigt arbejder tegnestuen altid på at opnå den bedste arkitektur, fra vores tid, i respekt for den aktuelle bygningens historie, med optimal funktionalitet. Vores projekter omfatter boliger boligbebyggelser, erhvervsbyggeri, kultur og institutioner, der kan renoveres og stå i mange generationer.

Transformering og ombygning af gamle bygninger

Tegnestuen arbejder med bygnings-udvikling af gamle bygninger i bymæssige sammenhænge og med bygninger i det åbne land.

For os er det vigtigt at en ombygning og transformering af gamle bygning, kan ses i en historisk byfornyelses og landskabeligt sammenhæng. Er den gamle bygning bevaringsværdig eller fredet med høj save-værdi udvikles byggeriet i samarbejde mellem bygherren- fredningsmyndigherder.

Fyrkroen - Fyrvejen 29A, Gilleleje - Billede 1
Fyrkroen - Fyrvejen 29A, Gilleleje - Billede 2
Fyrkroen - Fyrvejen 29A, Gilleleje - Billede 3
Fyrkroen - Fyrvejen 29A, Gilleleje - Billede 4
Se projekt
Kongevejen 225 - Billede 1
Kongevejen 225 - Billede 2
Kongevejen 225 - Billede 3
Kongevejen 225 - Billede 4
Kongevejen 225 - Billede 5
Kongevejen 225 - Billede 6
Kongevejen 225 - Billede 7
Kongevejen 225 - Billede 8
Se projekt

Bevaringsværdig bygning

Vi restaurerer bevaringsværdige bygninger med fokus på bevarelse af original arkitektur, materialer og håndværk. Vores projekter omfatter restaurering af facader, tag, vinduer og interiører med respekt for bygningens historiske værdi.

Kulturværftet - madmarked rooftop restaurant

Transformering af de gamle værftshaller med indretning af ny restaurant på taget. De gamle værft haller som er indrettet til madmarked, ønskes suppleret med ny rooftop-restaurant på hallernes tag. Restauranten indrettes med køkken ind- og udvendig servering som har udsigt over Øresund fra Kulden til Kronborg.

Kulturværftet - madmarked rooftop restaurant - Billede 1
Kulturværftet - madmarked rooftop restaurant - Billede 2
Kulturværftet - madmarked rooftop restaurant - Billede 3
Kulturværftet - madmarked rooftop restaurant - Billede 4
Se projekt
Ballerup Ny Skole - Billede 1
Ballerup Ny Skole - Billede 2
Ballerup Ny Skole - Billede 3
Ballerup Ny Skole - Billede 4
Ballerup Ny Skole - Billede 5
Ballerup Ny Skole - Billede 6
Ballerup Ny Skole - Billede 7
Ballerup Ny Skole - Billede 8
Ballerup Ny Skole - Billede 9
Se projekt

Ballerup Ny Skole

Transformering af Ballerup Ny Skole over flere etaper fra 2013 – 2018 med ny indskoling, industrikøkken, lærerfaciliteter og ombyg. af lokaler for ældste klasser.

Gefionsparken Helsingør

Helhedsplan, grundlag for renovering af bebyggelsen af 101 lejligheder, med forslag til nye tilgængelighedsboliger og et fælleshus.

Gefionsparken Helsingør - Billede 1
Gefionsparken Helsingør - Billede 2
Gefionsparken Helsingør - Billede 3
Gefionsparken Helsingør - Billede 4
Gefionsparken Helsingør - Billede 5
Gefionsparken Helsingør - Billede 6
Gefionsparken Helsingør - Billede 7
Gefionsparken Helsingør - Billede 8
Gefionsparken Helsingør - Billede 9
Se projekt
Tønder rådhus - Billede 1
Tønder rådhus - Billede 2
Tønder rådhus - Billede 3
Tønder rådhus - Billede 4
Tønder rådhus - Billede 5
Tønder rådhus - Billede 6
Tønder rådhus - Billede 7
Tønder rådhus - Billede 8
Tønder rådhus - Billede 9
Tønder rådhus - Billede 10
Se projekt

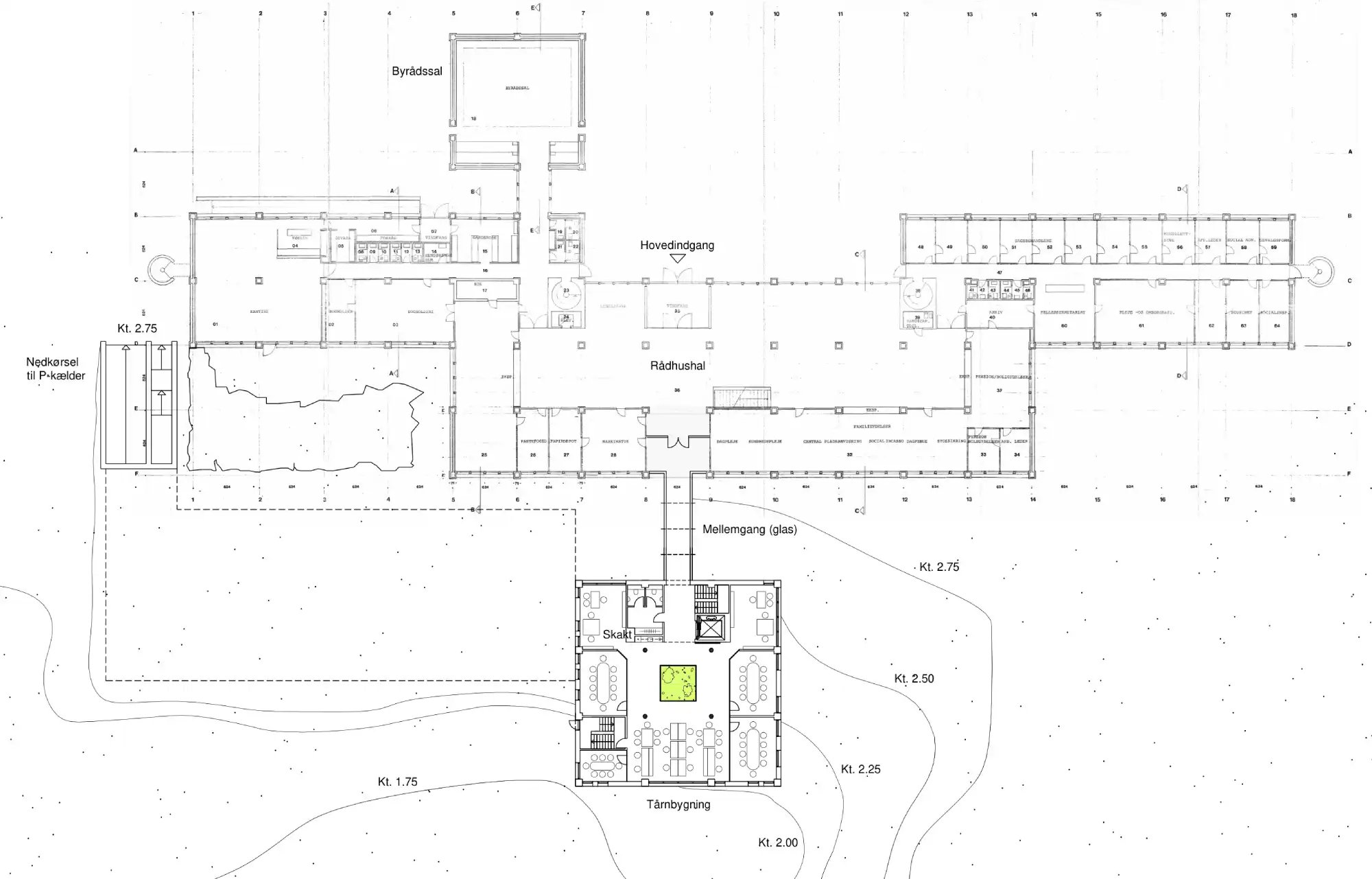
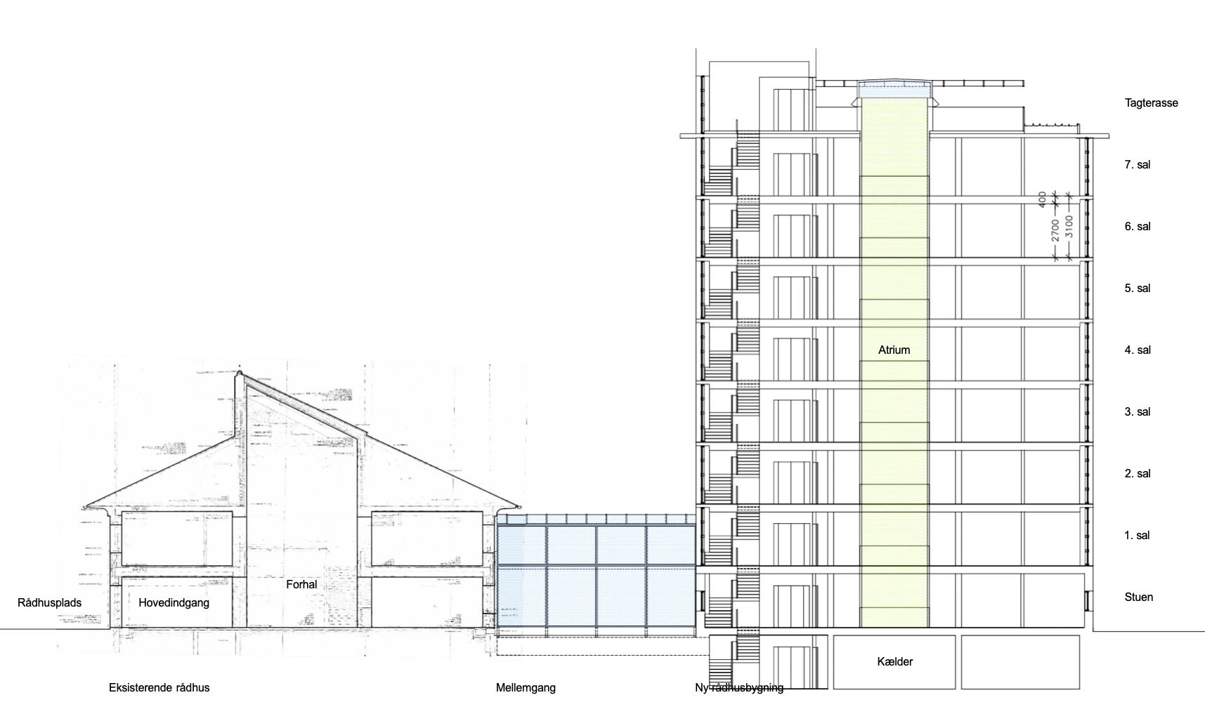
Tønder rådhus

Tegnestuen har referencer med ombygning transformerings projekt i Tønder. Tilbygning til Tønder Rådhus.

Konkurrenceprojekt udarbejdet til Tønder Kommune i 2012 for løsning af behovet for 200 flere arbejdspladser med tilbygning til det gamle rådhus fra 1981 tegnet af arkitekt Halldor Gunnløgsson.

Det gamle rådhus på 4900 m2 havde plads til 145 medarbejder som kommunen ønske udvidet med 200 arbejdspladser, i en kombination af 170 faste arbejdspladser og 30 løse pladser organiseret i stormumskontorer.

Vores ide var at udnytte den enestående beliggenhed med mest mulig udsigt til middelalderbyen og marsken og det åbne landskab. Vores forslag er derfor en simpel højhusbygning i 8 etager der let kunne tilpasses den gamle administrationsbygning med en simpel let mellembygning.

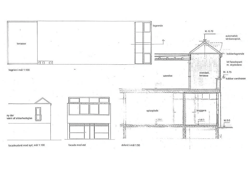
Emiliekildevej 15 i Charlottenlund

Ombygning i tre etaper. Ombygning af altan inddækning med glastag mv. Indretning af aftægtsbolig og ombygninger ejendommen. Projektering og udførelse i perioden 2005 – 2009.

Emiliekildevej 15 i Charlottenlund - Billede 1
Emiliekildevej 15 i Charlottenlund - Billede 2
Emiliekildevej 15 i Charlottenlund - Billede 3
Emiliekildevej 15 i Charlottenlund - Billede 4
Se projekt
Dyssegårdsskolen i Gentofte - Billede 1
Dyssegårdsskolen i Gentofte - Billede 2
Dyssegårdsskolen i Gentofte - Billede 3
Dyssegårdsskolen i Gentofte - Billede 4
Se projekt

Dyssegårdsskolen i Gentofte

Tegnestuen har referencer fra 2012 med ombygnings- og restaurering af gamle bevaringsværdig bygning (SAVE 2).

For Gentofte Ejendomme har vi restaureret gammelt ovenlysvindue over den ikoniske hovedtrappe eller rampe ”sneglen” i den oprindelige skolebygning på Dyssegårdsvej 26 i Hellerup. Trappen og skolen er tegnet i nyklassicistisk stil af arkitekterne G.B. Hagen, Alfred Brandt og Carl Schiøtz i 1929.

Det gamle udvendigt ovenlys og tagbelægninger blev forsigtigt nedtaget og ny undertagkonstruktion blev udført. Ovenlys og tagbelægning blev genetableret med nødvendige reparationer af elementerne der blev genanvendt.

Den indvendige glaskontraktion blev forsigtigt nedtaget renset og lagt tilbage i oprindelige stålrammer i ny kit. Over det gamle ovenlysvindue blev nyt termovindue udført i ny stålkonstruktion. Ovenlys og tag rum blev varme isoleret med mineraluld, for at undgå fugt mv.

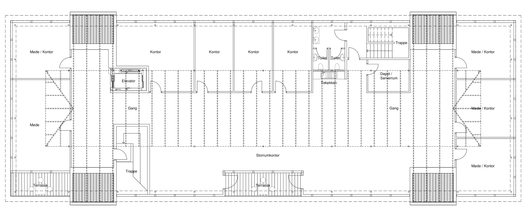
Renell Haderslev Vej 18 i Helsingør

Transformering af eks. Administrationsbygning med indretning af loftrum til adm. samt forslag til ny lagergerbygning til udlejning i mindre enheder. Forslag, udvikling, – og myndighedsbehandling udført i 2012.

Renell Haderslev Vej 18 i Helsingør - Billede 1
Renell Haderslev Vej 18 i Helsingør - Billede 2
Renell Haderslev Vej 18 i Helsingør - Billede 3
Renell Haderslev Vej 18 i Helsingør - Billede 4
Renell Haderslev Vej 18 i Helsingør - Billede 5
Renell Haderslev Vej 18 i Helsingør - Billede 6
Se projekt